Нежилые свободного назначения площадью 21,30 м2, по цене 2500000 по адресу Костякова - 10

Цена 2 500 000 р.
Вид недвижимости Нежилые свободного назначения
Адрес Костякова, 10
Площадь помещения 21,3 м2
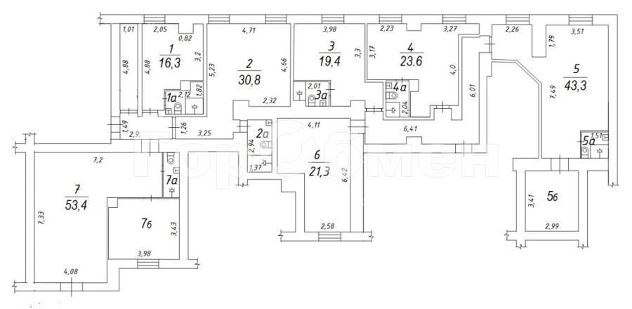
Помещение свободного назначения без отделки, 600 м от метро Тимирязевская . Отдельный кадастровый номер, все данные внесены в ЕГРН. По документу площадь помещения (номер 6 на схеме) 21,3 кв.м Полезная площадь около 15 кв.м - в углу комнаты трубы (при желании можно отгородить стеной, конечно, оставив к ним доступ). В помещении одно окно, есть мокрая точка, можно организовать санузел. Цокольный этаж 6-ти этажного уникального жилого дома ("сталинка", в доме до сих пор работает легендарный кинотеатр Искра). Вход через подъезд. Большой огороженный двор, мест для парковки всегда достаточно. Старый густонаселенный район Москвы со сложившейся инфраструктурой. Покупайте - для себя, для сдачи в аренду, просто спрятать деньги от инфляции. В собственности физлица. Полная стоимость в договоре. Быстрый выход на сделку.
Объявление № 23939891
Дата подачи:
1 марта 2026 г. 3:19
Дата обновления:
28 февраля 2026 г. 14:17
Просмотров 1 Хотите продать быстрее?

Продавец
Агентство недвижимости:
ЯКОВЛЕВ ПАВЕЛ ВИКТОРОВИЧ
Показать номер телефона
Пожаловаться
Комментарии:
Добавить